Alternative Estates Sales & Lettings Ltd - Property details

Skip to content

Beauchamp House, Greyfriars Road, COVENTRY CITY CENTRE, Coventry, CV1 2 bedroom apartment flat/apartment For Sale in Coventry

£145,000.00

1 reception, 2 bedrooms, 2 bathrooms. Year Built : 2005


Tenure : Leasehold
Council Tax Band : C
Estate Fee : 2858.0000
Building Insurance : Ask Agent
Ground Rent : £200.00
Ground Rent Review : Ask Agent
Ground Rent % Increase : Ask Agent

Property reference: NEU-GU411TY2UF
Print property

Features

  • Two Bedroom First Floor City Centre Apartment
  • Open plan Lounge, Dining area and Kitchen
  • Main Bedroom with En-suite Bathroom
  • Separate Fitted Shower room
  • Double glazing and electric heating
  • Allocated Parking Space in Underground Car Park
  • Let @ £1100 PCM FIXED TERM TENANCY
  • Close proximity to Train Station and City Centre Amenities
  • Adjacent to £450m Coventry City Centre South Regeneration project

Property overview

Introduction

City centre location........This City Centre first floor apartment has two bedrooms (master bedroom en-suite bathroom), shower room, open plan lounge/kitchen, double glazing, electric heating, allocated parking space in the underground secure car park. The property has been redecorated and new flooring (October 2022). Adjacent to £450m Coventry City Centre South Regeneration project (homes, shopping, hotel, cinema etc..) with work beginning late 2023. Currently let @ £1100PCM ON A FIXED TERM TENANCY

Description

City centre location........This City Centre first floor apartment has two bedrooms (master bedroom en-suite bathroom), shower room, open plan lounge/kitchen, double glazing, electric heating, allocated parking space in the underground secure car park. The property has been redecorated and new flooring (October 2022). Adjacent to £450m Coventry City Centre South Regeneration project (homes, shopping, hotel, cinema etc..) with work beginning late 2023. Currently let @ £1100PCM ON A FIXED TERM TENANCY

  • Communal Entrance into Block
  • First Floor Landing
  • Door into:
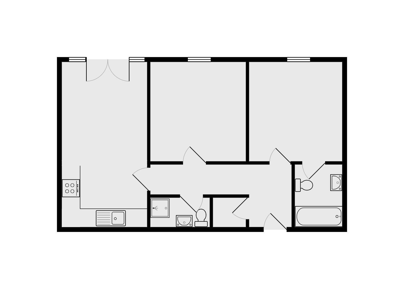
  • Hall

    Built in cupboard housing hot water tank. Electric wall heater.

  • Lounge/Kitchen

    19'1" (5m 81cm) approx. x 12'5" (3m 78cm) approx.

    Open Lounge/Fitted Kitchen area. To the Kitchen - fitted with ample wall and base units with work surfaces over. Built in dishwasher. Built in electric oven, hob and extractor fan over. Single drainers stainless steel sink. Built in automatic washing machine. To the Lounge - electric wall heater. uPVC double glazed window and door to Juliet balcony.

  • Shower Room

    Shower cubicle with shower. White close coupled wc and wash hand basin.

  • Bedroom 1

    12'4" (3m 75cm) approx. x 9'7" (2m 92cm) approx.

    uPVC double glazed window. Electric wall heater.

  • EnSuite Bathroom

    Fitted suite comprising of panelled bath with half tiled walls around, close coupled wc and wash hand basin with tiled splashback.

  • Bedroom 2

    12'5" (3m 78cm) approx. x 8'10" (2m 69cm) approx.

    uPVC double glazed window. Wall mounted electric heater.

  • AGENTS NOTES

    While every reasonable effort is made to ensure the accuracy of descriptions and content, we should make you aware of the following guidance or limitations. (1) MONEY LAUNDERING REGULATIONS Intending purchasers will be asked to produce identification documentation at a later stage and we would ask for your co-operation in order that there will be no delay in agreeing the sale. (2) These particulars do not constitute part or all of an offer or contract. (3) The measurements indicated are supplied for guidance only and as such must be considered incorrect. (4) Potential buyers are advised to recheck the measurements before committing to any expense. (5) Alternative Estates have not tested any apparatus, equipment, fixtures, fittings or services and it is the buyers interests to check the working condition of any appliances. (6) Alternative Estates have not sought to verify the legal title of the property and the buyers must obtain verification from their solicitor.

  • TENURE - LEASEHOLD

    TENURE - We understand from the vendor that the property is Leasehold - 150 years from 2005. Service charge amount for the period 01/10/25 – 31/03/26 is £1247.75 for the half year Covering - Buildings Insurance, communal cleaning, lighting and heating. Decoration/maintenance, roof along with Car Park & Courtyard areas. Ground Rent £200 paid half yearly to Home Ground. Alternative Estates has not sought to verify the legal title of the property and the buyers must obtain verification from their solicitor.

  • Coventry City Centre South Regeneration Project

    Adjacent to £450m Coventry City Centre South Regeneration project with work due to begin late 2023. Beauchamp House is immediately below the blue outline of the development on the image. Outline Planning Approval was granted for the City Centre South scheme in April 2021. The scheme, which has already secured £98m in funding from the West Midlands Combined Authority is located in the southern part of the city centre and is made up of 6.4 hectares / 15 acres (the equivalent of nine football pitches), including Bull Yard, Shelton Square, Market Way, City Arcade. The developer Shearer Property Regen Ltd want to deliver new homes, a hotel, cinema, retail and restaurants along with co-working and community spaces. These proposals will create a new focal point for all of Coventry’s communities to come together, as well as drawing in visitors, with inviting new public realm and accessible events space at its heart.

Property data powered by Stand Out Property Manager

Quick Facts

Parking
  • Allocated
Heating
  • Electric
Outside Space
  • Communal Garden
Water
  • Mains Supply
Sewerage
  • Mains Supply
Condition
  • Good

Obligations

Listed
  • No
Restrictions
  • No
Required Access
  • No
Rights Of Way
  • No

Risks

Flooded In Last Five Years
  • No
Flood Defences
  • No

Mobile link

Scan this QR code to go directly to this property on your phone.

Contact the agent

  • Alternative Estates and Financial Services Ltd — 7 New Union Street
  • 7 New Union Street,
    Coventry,
    West Midlands
    CV1 2HN
  • 024 7655 1919
  • Email agent

Stamp duty estimate

Mortgage calculator

Similar properties

2 bedroom apartment flat/apartment For Sale in Coventry - Photograph 12.
2 bedroom apartment flat/apartment For Sale in Coventry - Photograph 1.
2 bedroom apartment flat/apartment For Sale in Coventry - Photograph 4.
2 bedroom apartment flat/apartment For Sale in Coventry - Photograph 5.
2 bedroom apartment flat/apartment For Sale in Coventry - Photograph 6.
2 bedroom apartment flat/apartment For Sale in Coventry - Photograph 2.
2 bedroom apartment flat/apartment For Sale in Coventry - Photograph 9.
2 bedroom apartment flat/apartment For Sale in Coventry - Photograph 10.
2 bedroom apartment flat/apartment For Sale in Coventry - Photograph 7.
2 bedroom apartment flat/apartment For Sale in Coventry - Photograph 8.
2 bedroom apartment flat/apartment For Sale in Coventry - Photograph 12.
2 bedroom apartment flat/apartment For Sale in Coventry - Photograph 11.
2 bedroom apartment flat/apartment For Sale in Coventry - Photograph 13.
2 bedroom apartment flat/apartment For Sale in Coventry - Photograph 14.

More information

The graph shows the current stated energy efficiency for this property.

The higher the rating the lower your fuel bills are likely to be.

The potential rating shows the effect of undertaking the recommendations in the EPC document.

The average energy efficiency rating for a dwelling in England and Wales is band D (rating 60).

Current rating 84
Potential rating 87
2 bedroom apartment flat/apartment For Sale in Coventry - Floorplan 1.
2 bedroom apartment flat/apartment For Sale in Coventry - Floorplan 2.

Arrange a viewing

We treat your privacy seriously. We will never sell your information. We will never pass your information on to third parties without your consent, or use it for any reason other than those you allow.

Contains HM Land Registry data © Crown copyright and database right 2017. This data is licensed under the Open Government Licence v3.0.